Размер шрифта
Цвет фона и шрифта
Изображения
Озвучивание текста
Обычная версия сайта
РусТехМаш
Готовые заводы для производства
бетона и газобетона 
8 800 222 80 67 Звонок бесплатный
8 800 222 80 67
Заказать звонок
E-mail
mail@rustehmash.com
Адрес
Казань
Режим работы
Пн. – Пт.: с 9:00 до 18:00
Подать заявку
Главная
О заводе
  • Информация о заводе
  • Вакансии на заводе
  • Новости
  • География поставок
  • Сертификаты
  • Отзывы
  • Партнеры
Продукция
  • Газобетонное оборудование
    • Мини линии
    • Стационарные линии
    • Конвейерные линии СТ
    • Конвейерные линии с ЧПУ
    • Пено + газобетонн (МФЗ)
  • Скиповые бетонные заводы
    • Скип- 10Э- 1В (10 м3/час)
    • Скип- 25Э- 1В (25 м3/час)
    • Скип- 15- 2В (15 м3/час)
    • Скип- 30- 1В (30 м3/час)
    • Скип- 45- 2В (45 м3/час)
    • Скип- 60- 1В (60 м3/час)
    • Скип- 60- 2В (60 м3/час)
    • Скип- 90- 2В (90 м3/час)
  • Мобильные бетонные заводы
    • Мобил- 15- 1В (15 м3/час)
    • Мобил- 20- 1В (РО 2,8)
    • Мобил- 25- 2В (РО 2,8)
    • Мобил- 30- 1В (30 м3/час)
    • Мобил- 30- 2В (30 м3/час)
    • Мобил- 45- 2В (45 м3/час)
    • Мобил- 60- 2В (60 м3/час)
    • Мобил- 90- 2В (90 м3/час)
  • Ленточные бетонные заводы
    • Лента- 18 (18 м3/час)
    • Лента- 36 (36 м3/час)
    • Лента- 54 (54 м3/час)
    • Лента- 72 (72 м3/час)
    • Лента- 105 (105 м3/час)
    • Лента- 120 (120 м3/час)
    • Мобильные ленты (серия МТ)
  • Зимние бетонные заводы
    • Скип- 20- 1В (РО 2,8)
    • Скип- 25- 2В (РО 2,8)
    • Скип- 15- 2В (15 м3/час)
    • Скип- 30- 2В (30 м3/час)
    • Скип- 45- 2В (45 м3/час)
    • Скип- 60- 2В (60 м3/час)
    • Скип- 90- 2В (90 м3/час)
  • Мини мобильные бетонные заводы
    • Мобил- 20- 1В (20 м3/час)
    • Мобил 25- 2В (25 м3/час)
    • Мобил 45- 2В (45 м3/час)
  • Силосы цемента
    • Силос цемента СЦР- 35
    • Силос цемента СЦР- 50
    • Силос цемента СЦР- 75
    • Силос цемента СЦР- 100
    • Силос цемента СЦР- 120
    • Силос цемента СЦР- 140
    • Силос цемента СЦР- 160
  • Комплектующие
    • Бетоносмесители
    • Расстариватели БигБэгов
    • Шнековые конвейеры
    • Парогенераторы
Полезное
  • Проекты
  • Сервис
    • Документация
  • Фото
  • Экономика бизнеса
  • Вопрос-ответ
Отгрузки
Видео-отзывы
Цены
  • Бетонные заводы
  • Газобетонные заводы
  • Комплектующие к заводам
Контакты
Казань
Барнаул
Екатеринбург
Казань
Казахстан
Краснодар
Красноярск
Москва
Новосибирск
Санкт-Петербург
РусТехМаш
Готовые заводы для производства
бетона и газобетона 
Казань
Барнаул
Екатеринбург
Казань
Казахстан
Краснодар
Красноярск
Москва
Новосибирск
Санкт-Петербург
8 800 222 80 67 Звонок бесплатный
8 800 222 80 67
Заказать звонок
E-mail
mail@rustehmash.com
Адрес
Казань
Режим работы
Пн. – Пт.: с 9:00 до 18:00
Подать заявку
Главная
О заводе
  • Информация о заводе
  • Вакансии на заводе
  • Новости
  • География поставок
  • Сертификаты
  • Отзывы
  • Партнеры
Продукция
  • Газобетонное оборудование
    Газобетонное оборудование
    • Мини линии
    • Стационарные линии
    • Конвейерные линии СТ
    • Конвейерные линии с ЧПУ
    • Пено + газобетонн (МФЗ)
  • Скиповые бетонные заводы
    Скиповые бетонные заводы
    • Скип- 10Э- 1В (10 м3/час)
    • Скип- 25Э- 1В (25 м3/час)
    • Скип- 15- 2В (15 м3/час)
    • Скип- 30- 1В (30 м3/час)
    • Скип- 45- 2В (45 м3/час)
    • Скип- 60- 1В (60 м3/час)
    • Скип- 60- 2В (60 м3/час)
    • Скип- 90- 2В (90 м3/час)
  • Мобильные бетонные заводы
    Мобильные бетонные заводы
    • Мобил- 15- 1В (15 м3/час)
    • Мобил- 20- 1В (РО 2,8)
    • Мобил- 25- 2В (РО 2,8)
    • Мобил- 30- 1В (30 м3/час)
    • Мобил- 30- 2В (30 м3/час)
    • Мобил- 45- 2В (45 м3/час)
    • Мобил- 60- 2В (60 м3/час)
    • Мобил- 90- 2В (90 м3/час)
  • Ленточные бетонные заводы
    Ленточные бетонные заводы
    • Лента- 18 (18 м3/час)
    • Лента- 36 (36 м3/час)
    • Лента- 54 (54 м3/час)
    • Лента- 72 (72 м3/час)
    • Лента- 105 (105 м3/час)
    • Лента- 120 (120 м3/час)
    • Мобильные ленты (серия МТ)
  • Зимние бетонные заводы
    Зимние бетонные заводы
    • Скип- 20- 1В (РО 2,8)
    • Скип- 25- 2В (РО 2,8)
    • Скип- 15- 2В (15 м3/час)
    • Скип- 30- 2В (30 м3/час)
    • Скип- 45- 2В (45 м3/час)
    • Скип- 60- 2В (60 м3/час)
    • Скип- 90- 2В (90 м3/час)
  • Мини мобильные бетонные заводы
    Мини мобильные бетонные заводы
    • Мобил- 20- 1В (20 м3/час)
    • Мобил 25- 2В (25 м3/час)
    • Мобил 45- 2В (45 м3/час)
  • Силосы цемента
    Силосы цемента
    • Силос цемента СЦР- 35
    • Силос цемента СЦР- 50
    • Силос цемента СЦР- 75
    • Силос цемента СЦР- 100
    • Силос цемента СЦР- 120
    • Силос цемента СЦР- 140
    • Силос цемента СЦР- 160
  • Комплектующие
    Комплектующие
    • Бетоносмесители
    • Расстариватели БигБэгов
    • Шнековые конвейеры
    • Парогенераторы
Полезное
  • Проекты
  • Сервис
    • Документация
  • Фото
  • Экономика бизнеса
  • Вопрос-ответ
Отгрузки
Видео-отзывы
Цены
  • Бетонные заводы
  • Газобетонные заводы
  • Комплектующие к заводам
Контакты
    РусТехМаш
    Главная
    О заводе
    • Информация о заводе
    • Вакансии на заводе
    • Новости
    • География поставок
    • Сертификаты
    • Отзывы
    • Партнеры
    Продукция
    • Газобетонное оборудование
      Газобетонное оборудование
      • Мини линии
      • Стационарные линии
      • Конвейерные линии СТ
      • Конвейерные линии с ЧПУ
      • Пено + газобетонн (МФЗ)
    • Скиповые бетонные заводы
      Скиповые бетонные заводы
      • Скип- 10Э- 1В (10 м3/час)
      • Скип- 25Э- 1В (25 м3/час)
      • Скип- 15- 2В (15 м3/час)
      • Скип- 30- 1В (30 м3/час)
      • Скип- 45- 2В (45 м3/час)
      • Скип- 60- 1В (60 м3/час)
      • Скип- 60- 2В (60 м3/час)
      • Скип- 90- 2В (90 м3/час)
    • Мобильные бетонные заводы
      Мобильные бетонные заводы
      • Мобил- 15- 1В (15 м3/час)
      • Мобил- 20- 1В (РО 2,8)
      • Мобил- 25- 2В (РО 2,8)
      • Мобил- 30- 1В (30 м3/час)
      • Мобил- 30- 2В (30 м3/час)
      • Мобил- 45- 2В (45 м3/час)
      • Мобил- 60- 2В (60 м3/час)
      • Мобил- 90- 2В (90 м3/час)
    • Ленточные бетонные заводы
      Ленточные бетонные заводы
      • Лента- 18 (18 м3/час)
      • Лента- 36 (36 м3/час)
      • Лента- 54 (54 м3/час)
      • Лента- 72 (72 м3/час)
      • Лента- 105 (105 м3/час)
      • Лента- 120 (120 м3/час)
      • Мобильные ленты (серия МТ)
    • Зимние бетонные заводы
      Зимние бетонные заводы
      • Скип- 20- 1В (РО 2,8)
      • Скип- 25- 2В (РО 2,8)
      • Скип- 15- 2В (15 м3/час)
      • Скип- 30- 2В (30 м3/час)
      • Скип- 45- 2В (45 м3/час)
      • Скип- 60- 2В (60 м3/час)
      • Скип- 90- 2В (90 м3/час)
    • Мини мобильные бетонные заводы
      Мини мобильные бетонные заводы
      • Мобил- 20- 1В (20 м3/час)
      • Мобил 25- 2В (25 м3/час)
      • Мобил 45- 2В (45 м3/час)
    • Силосы цемента
      Силосы цемента
      • Силос цемента СЦР- 35
      • Силос цемента СЦР- 50
      • Силос цемента СЦР- 75
      • Силос цемента СЦР- 100
      • Силос цемента СЦР- 120
      • Силос цемента СЦР- 140
      • Силос цемента СЦР- 160
    • Комплектующие
      Комплектующие
      • Бетоносмесители
      • Расстариватели БигБэгов
      • Шнековые конвейеры
      • Парогенераторы
    Полезное
    • Проекты
    • Сервис
      • Документация
    • Фото
    • Экономика бизнеса
    • Вопрос-ответ
    Отгрузки
    Видео-отзывы
    Цены
    • Бетонные заводы
    • Газобетонные заводы
    • Комплектующие к заводам
    Контакты
      Казань
      Барнаул
      Екатеринбург
      Казань
      Казахстан
      Краснодар
      Красноярск
      Москва
      Новосибирск
      Санкт-Петербург
      8 800 222 80 67
      Заказать звонок
      E-mail
      mail@rustehmash.com
      Адрес
      Казань
      Режим работы
      Пн. – Пт.: с 9:00 до 18:00
      Подать заявку
      РусТехМаш
      Телефоны
      8 800 222 80 67
      Заказать звонок
      РусТехМаш
      • Главная
      • О заводе
        • О заводе
        • Информация о заводе
        • Вакансии на заводе
        • Новости
        • География поставок
        • Сертификаты
        • Отзывы
        • Партнеры
      • Продукция
        • Продукция
        • Газобетонное оборудование
          • Мини линии
          • Стационарные линии
          • Конвейерные линии СТ
          • Конвейерные линии с ЧПУ
          • Пено + газобетонн (МФЗ)
        • Скиповые бетонные заводы
          • Скип- 10Э- 1В (10 м3/час)
          • Скип- 25Э- 1В (25 м3/час)
          • Скип- 15- 2В (15 м3/час)
          • Скип- 30- 1В (30 м3/час)
          • Скип- 45- 2В (45 м3/час)
          • Скип- 60- 1В (60 м3/час)
          • Скип- 60- 2В (60 м3/час)
          • Скип- 90- 2В (90 м3/час)
        • Мобильные бетонные заводы
          • Мобил- 15- 1В (15 м3/час)
          • Мобил- 20- 1В (РО 2,8)
          • Мобил- 25- 2В (РО 2,8)
          • Мобил- 30- 1В (30 м3/час)
          • Мобил- 30- 2В (30 м3/час)
          • Мобил- 45- 2В (45 м3/час)
          • Мобил- 60- 2В (60 м3/час)
          • Мобил- 90- 2В (90 м3/час)
        • Ленточные бетонные заводы
          • Лента- 18 (18 м3/час)
          • Лента- 36 (36 м3/час)
          • Лента- 54 (54 м3/час)
          • Лента- 72 (72 м3/час)
          • Лента- 105 (105 м3/час)
          • Лента- 120 (120 м3/час)
          • Мобильные ленты (серия МТ)
        • Зимние бетонные заводы
          • Скип- 20- 1В (РО 2,8)
          • Скип- 25- 2В (РО 2,8)
          • Скип- 15- 2В (15 м3/час)
          • Скип- 30- 2В (30 м3/час)
          • Скип- 45- 2В (45 м3/час)
          • Скип- 60- 2В (60 м3/час)
          • Скип- 90- 2В (90 м3/час)
        • Мини мобильные бетонные заводы
          • Мобил- 20- 1В (20 м3/час)
          • Мобил 25- 2В (25 м3/час)
          • Мобил 45- 2В (45 м3/час)
        • Силосы цемента
          • Силос цемента СЦР- 35
          • Силос цемента СЦР- 50
          • Силос цемента СЦР- 75
          • Силос цемента СЦР- 100
          • Силос цемента СЦР- 120
          • Силос цемента СЦР- 140
          • Силос цемента СЦР- 160
        • Комплектующие
          • Бетоносмесители
          • Расстариватели БигБэгов
          • Шнековые конвейеры
          • Парогенераторы
      • Полезное
        • Полезное
        • Проекты
        • Сервис
          • Сервис
          • Документация
        • Фото
        • Экономика бизнеса
        • Вопрос-ответ
      • Отгрузки
      • Видео-отзывы
      • Цены
        • Цены
        • Бетонные заводы
        • Газобетонные заводы
        • Комплектующие к заводам
      • Контакты
      Подать заявку
      • Казань
        • Города
        • Барнаул
        • Екатеринбург
        • Казань
        • Казахстан
        • Краснодар
        • Красноярск
        • Москва
        • Новосибирск
        • Санкт-Петербург
      • 8 800 222 80 67
        • Телефоны
        • 8 800 222 80 67
        • Заказать звонок
      • Казань
      • mail@rustehmash.com
      • Пн. – Пт.: с 9:00 до 18:00
      Главная
      —
      Продукция
      —
      Бетонные заводы
      —
      Мини мобильные бетонные заводы
      —Мобил - 20 - 1В (20 м3/час)

      Мобил - 20 - 1В (20 м3/час)

      • Фото
      • Видео
      • Видеоотзывы
      В наличии
      от 3 536 000 ₽
      в том числе НДС 20%
      Производительность:
      до 20 м3/час
      Время монтажа:
      до 5 дней
      Сезонность:
      Лето Зима
      Гарантия два года
      Доставка по России и СНГ
      Продажа оборудования в лизинг
      Справочный центр 24/7
      Запросить коммерческое предложение
      Ваша заявка отправлена!
      Заявка принята
      Спасибо!
      Ваше сообщение отправлено!
      Закрыть
      Проведение пусконаладочных работ
      Проведем комплекс мер для запуска завода и обучения персонала
      Быстрый монтаж
      Мобильный завод
      Сертификат
      Вся наша выпускаемая продукция имеет сертификат соответствия по ГОСТ
      Базовая комплектация
      Дополнительные опции
      Описание работ
      Схема и характеристики
      Базовая комплектация
      Одновальный бетоносмеситель БРОНЯ- 1В- 500С (скиповый)
      Мощность привода смесителя, 11 кВт
      Тип редуктора: червячный одноступенчатый
      Мощность привода лебедки, 3 кВт
      Объем скипового бака 0,8 м3
      Перемешивающий вал- 2 единицы
      Лопасти сменные- 6 шт. Материал: износостойкий сплав металла
      Броня сменная лепестковаго типа. Толщина: броня корпуса - 8 мм, боковая - 8 мм
      Количество сменной брони: корпуса - 66 шт., боковых - 8 шт.
      Пневмозаслонка с двумя пневмоцилиндрами (Camozzi, Италия)
      Кнопка аварийной остановки бетоносмесителя
      Комплект для подключения бетоносмесителя (пневматика, электроразводка)
      от 990 000 ₽
      Рама опорная
      Полы обслуживания эстакады
      Ограждения по периметру площадки
      Лестница с перилами
      Выгрузная воронка с резиновым рукавом
      Скиповые рельсовые пути
      Крепление для ленточного наклонного конвейера
      Метизы для сборки эстакады
      Окраска: пескоструйка и окраска в покрасочной камере с сушкой
      от 210 000 ₽
      Дозирующий комплекс МБ- 8 (2 х 4)
      Монтажные пластины для крепления
      Выходы под установку регистров обогрева
      Количество затворов на дозаторе - 4 шт.
      Вибратор MVE 300/3 - 2 шт.
      Тензодатчик CAS SBA-2t - 4 шт.
      Футерованные барабаны
      Оцинкованные ролики и токарные детали (метод гальванирования)
      Комплект подключения пневматики
      Привод: червячный- мотор редуктор 5,0 кВт
      от 1 050 000 ₽
      Блок дозаторов РТМ-15 (цемент 200 кг, вода 100л, химия 20 л)
      Рама для установки
      Дозатор цемента на 200 кг.
      Тензодатчики CAS BSA-250L - 3 шт
      Дозатор воды на 100 кг.
      Тензодатчики CAS BSA-250L - 3 шт
      Дозатор химии на 10 кг.
      Тензодатчики CAS BCA-20 - 2 шт
      Дисковая пневмозаслонка цемента V1FA200 (200 мм)
      Дисковая пневмозаслонка воды- 1 шт. (диаметр 100 мм)
      Клапан седельный дозатора химии
      Комплект рукавов подачи цемента
      Комплект рукавов подачи воды
      Метизная продукция для сборки
      Вибро двигатель
      Пневматика для подключения дозатора
      Электрика для подключения дозатора
      от 540 000 ₽
      Компрессор СБ4/C-200.LB30
      Компрессор СБ4/C-200.LB30
      от 105 000 ₽
      Полуавтоматический пульт управления ПАМ
      Полуавтоматический режим работы
      База хранения рецептов
      Сенсорная панель управления. Диагональ 10,1 дюйма
      Пульт управления в пылевлагозащищенном корпусе IP56
      Пропечатанная панель управления с пылевлагозащищенными кнопками
      Комплект схем подключения
      от 610 000 ₽
      Комплект для сборки и подключения МИНИ МОБИЛ
      Комплект подключения пневматики (пневмотрасса, пневмо переключатели, фитинга)
      Комплект силовых проводов подключения завода
      Комплект контролирующих датчиков (концевые выключатели, герконн на заслонку)
      Метизы для сборки РБУ: (эстакада, блок дозаторов)
      Метизы для сборки комплектующих
      Комплект заслонок на воду и хим. добавки
      Крепеж шнекового конвейера
      от 61 000 ₽
      Дополнительные опции
      Шнековый конвейер D- 168/4000
      Шнековый конвейер D- 168/4000
      Секций в конвейере- 2 шт.
      Корпус верхнего и нижнего подшипникового узла
      Промежуточный подшипниковый узел, 1 шт.
      Привод, мотор- редуктор, 4 кВт
      Смотровой люк для чистки на каждой секции
      Паспорт изделия
      от 220 000 ₽
      Шнековый конвейер D- 168/6000
      Шнековый конвейер D- 168/6000
      Секций в конвейере- 3 шт.
      Корпус верхнего и нижнего подшипникового узла
      Промежуточный подшипниковый узел, 2 шт.
      Привод, мотор- редуктор, 5,5 кВт
      Смотровой люк для чистки на каждой секции
      Паспорт изделия
      от 255 000 ₽
      Силос цемента СЦР- 50 (50 тонн)
      Обечайка силоса: (количество колец - 3 шт., секторов - 12 шт.)
      Конус силоса: количество секторов- 6 шт.
      Крышка силоса (4 секции) с защитными поручнями
      Установочные фланцы (фильтра цемента, аэрации, аварийный клапана)
      Труба закачки цемента диаметров 102 мм с замком
      Стойки силоса с распорками из уголка 90х90х7 мм
      Метизы для сборки силоса
      Паспорт изделия
      от 910 000 ₽
      Силос цемента СЦР- 75 (75 тонн)
      Обечайка силоса: (количество колец - 4 шт., секторов - 16 шт.)
      Конус силоса: количество секторов- 6 шт.
      Крышка силоса (4 секции) с защитными поручнями
      Установочные фланцы (фильтра цемента, аэрации, аварийный клапана)
      Труба закачки цемента диаметров 102 мм с замком
      Стойки силоса с распорками из уголка 90х90х7 мм
      Метизы для сборки силоса
      Паспорт изделия
      от 1 056 000 ₽
      Растариватель БигБэгов
      Рама расстаривателя БигБэгов
      Опора для мешков
      Ножи из инструментальной стали
      Вибродвигатель OLI MVE300 (Италия)- 1 шт.
      Патрубок для перекачки цемента
      Комплект метизов для сборки
      Паспорт изделия
      от 135 000 ₽
      Станция растаривания БигБэгов с эл. талью
      Рама расстаривателя БигБэгов
      Рама станции расстаривания (связи из 63 уголка)
      Таль электрическая 2,0 тонны (тихоходная)
      Опора для мешков
      Ножи из инструментальной стали
      Вибродвигатель OLI MVE300 (Италия)- 1 шт.
      Патрубок для перекачки цемента
      Комплект метизов для сборки
      Паспорт изделия
      от 540 000 ₽
      Шнековый конвейер D- 219/10000
      Шнековый конвейер D- 219/10000
      Секций в конвейере- 5 шт.
      Корпус верхнего и нижнего подшипникового узла
      Промежуточный подшипниковый узел, 4 шт.
      Привод, мотор- редуктор, 11 кВт
      Смотровой люк для чистки на каждой секции
      Паспорт изделия
      от 405 900 ₽
      Затвор дисковый VFA-300 с ручным приводом
      Затвор дисковый VFA-300 с ручным приводом
      Техническая документация
      от 25 000 ₽
      Фильтр цемента из нержавеющей стали CCS- 24
      Фильтр цемента из нержавеющей стали CCS- 24
      Вибро очистка картриджей
      Установочное кольцо
      Техническая документация
      от 120 000 ₽
      Аварийный клапан сброса давления VDS273
      Аварийный клапан сброса давления VDS273
      Установочное кольцо
      Техническая документация
      от 17 000 ₽
      Вибратор MVE300 (Италия)
      Вибратор MVE300 (Италия)
      Техническая документация
      от 12 500 ₽
      Система аэрации (серия СЦР- 3400)
      Система аэрации (серия СЦР- 3400)
      Жиклер аэрации (8 шт.)
      Комплект для сборки (фитинги, тройники, трубка полиуретановая, уплотнитель, заглушка)
      Комплект подключения пневмотрассы (фильтр- регулятор, кран шаровый, манометр осевой, соленоид, разъём соленоида)
      от 45 300 ₽
      Датчик уровня 220В
      Датчик уровня 220В
      Техническая документация
      от 33 700 ₽
      Операторская кабина
      Операторская кабина
      Обшивка: профилированный лист, доборы
      Смотровые окна (3 шт.)
      Входная дверь
      Утепление операторской (60 мм)
      Освещение
      Отделка: OSB панель, линолеум, плинтус
      Транспортировочные петли
      от 195 000 ₽
      Насос PSTC 40-125/15
      Насос Calpeda MXH 202E
      Техническая документация:
      от 30 400 ₽
      Насос PSTC 80-125/175
      Насос NM 40/12F/A
      Техническая документация
      от 63 400 ₽
      Описание работ
       Мини-мобильный бетонный завод представляет собой компактное и портативное оборудование, способное производить бетонные смеси на месте строительства. Этот тип завода обладает рядом преимуществ, которые делают его популярным выбором для многих строительных проектов.

      Одной из главных особенностей мини-мобильных бетонных заводов является их портативность. Благодаря компактному размеру и мобильной конструкции, завод можно легко перемещать с места на место, что обеспечивает гибкость и экономию времени при работе на различных объектах. Это особенно полезно в случае строительства в удаленных или труднодоступных местах, где транспортировка готовых смесей может быть проблематичной.

      Одним из преимуществ мини-мобильных бетонных заводов является возможность производства бетона на самой стройплощадке в нужном количестве. Это устраняет необходимость в доставке готового бетона с других заводов и позволяет точно отмерить требуемое количество смеси. Кроме того, это также позволяет гибко реагировать на изменения в процессе строительства и корректировать состав бетонной смеси по мере необходимости.

      Мини-мобильные бетонные заводы обычно обладают такими же функциями и возможностями, что и их более крупные аналоги. Они оснащены системами смешивания бетонной смеси, а также механизмами для контроля воды, цемента и других компонентов. Более современные модели могут иметь автоматические системы дозировки, которые обеспечивают точность и однородность смеси.

      Завод автоматический, принцип “одна кнопка” Он состоит из следующих основных компонентов:

      1.     Дозирующий комплекс МБ-8 (2 секции по 4 м3): состоит из двух до четырех бункеров для хранения инертных материалов (щебень, песок, отсев). На каждом бункере имеется два пневмо- затвора, необходимых для точной дозации материалов. При дозировании материалы попадают на весовой ленточный конвейер, весовые датчики фирмы CAS Ю.Корея, при наборе нужного количества материалов, заслонки закрываются, подача прекращается. Объем каждого бункера от 2,5 м3 до 20 м3, в зависимости от комплектации завода. Каждый бункер оснащен вибродвигателем MVE 300/3.

      2.      После набора нужного количества материалов инертные попадают в одновальный бетоносмеситель.

      3.     Одновальный бетоносмеситель БРОНЯ- 1В- 500Л:  Бетоносмеситель оборудован одним горизонтальным валом с лопастями, которые смешивают сырье внутри смесительной камеры. Этот процесс обеспечивает высокое качество и однородность бетонной смеси.

      4.     Блок дозаторов РТМ-15 (цемента- 150 кг, вода 100 л, химия 10 л). Тут привходит дозирование цемента, воды и различных добавок. Во время смешивания в бетоносмесителе также можно добавлять различные добавки, такие как пластификаторы, красители или вяжущие вещества. Они дозируются и подаются в бетоносмеситель, чтобы обеспечить требуемые свойства бетонной смеси. Каждый дозатор расположен на трех весовых датчиках, фирмы CAS Ю.Корея. Это обеспечивает высокий уровень дозации материалов.

      5.     Склад цемента и подача в блок дозаторов. При необходимости завод комплектуется складом цемента (силосом или расстаривателем биг бэгов). Силос или расстариватель биг бэгов (опция) необходим для хранения цемента и различных сухих смесей. Транспортировка из силоса происходит с помощью шнекового конвейера. Силос необходимо подбирать из расчета трехдневного запаса цемента.

      6.     Выгрузка смеси: После завершения смешивания бетонная смесь выгружается из бетоносмесителя, лопатки расположены таким образом, чтобы при вращении они выгружали бетонную смесь из бетоносмесителя. Далее смесь поступает в миксер или на технологическую линию изготовления бетонных изделий.

      Мини- мобильный бетонный завод с одновальным бетоносмесителем является эффективным и надежным решением для производства бетонной смеси большой пропускной способностью и высоким качеством. Он обеспечивает равномерное смешивание сырья и позволяет добавлять различные добавки для получения требуемых характеристик бетона. Это оборудование широко используется в строительной промышленности для производства бетонных изделий различных размеров и форм.

      Данный завод производительность от 15 до 20 м3/час товарного бетона марки м200 или раствора. Объём загрузки бетоносмесителя 500 литров, объем выгрузки готового бетона 300 литров. Один цикл не более 55 секунд. Время работы цикла регулируется оператором бетонного завода. 

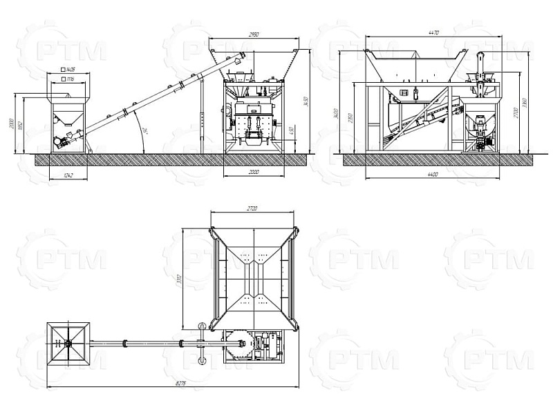
      Схема и характеристики
      Характеристики установки
      Производительность, куб. метров за час
      до 20 м3/час
      Бункеры (кол-во* объем м3)
      2 х 4= 8
      Бетоносмеситель (одновальный)
      1В- 500Л
      Режим работы
      Ручной
      Мощность, кВт
      7,5
      Объем силоса цемента, тонн (опция)
      от 35 то 50
      Масса не более, кг
      4 000
      География поставок
      Посмотреть географию поставок
      О компании
      География поставок
      Подбор завода
      Цены
      Расчет окупаемости
      Видео-отзывы
      Сертификаты
      Новости
      Лизинг
      Заказать завод
      Контакты
      Бетонные заводы
      Растворо-бетонные узлы
      Мобильные бетонные заводы
      Бетоносмесительные установки
      Мини бетонные заводы
      Ленточные бетонные заводы
      Газобетонные заводы
      Мини заводы по производству газобетона
      Стационарные линии по производству газобетона
      Конвейерные линии по производству газобетона (струнные
      Конвейерные линии по производству газобетона (ЧПУ пилы
      Комплектующие
      Бетоносмесители
      Дозирующие комплексы
      Парогенераторы
      Силосы цемента
      Мини бетонные заводы
      Сервис
      Экономика бетона
      Запуск завода
      Модернизация РБУ
      8 800 222 80 67 Звонок бесплатный
      8 800 222 80 67
      Заказать звонок
      E-mail
      mail@rustehmash.com
      Адрес
      Казань
      Режим работы
      Пн. – Пт.: с 9:00 до 18:00

      Заказать звонок
      mail@rustehmash.com
      Казань
      Пн. - Пт.: 8:00 - 20:00
      Сб. - Вс.: Закрыто
      Казань
      Барнаул
      Екатеринбург
      Казань
      Казахстан
      Краснодар
      Красноярск
      Москва
      Новосибирск
      Санкт-Петербург
      © 2026 ООО «РУСТЕХМАШ»
      Политика конфиденциальности